View on map Contact us about this listing


















4 Beds
3 Baths
2,596SqFt
Active
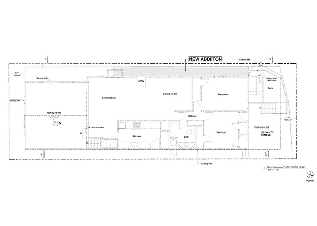
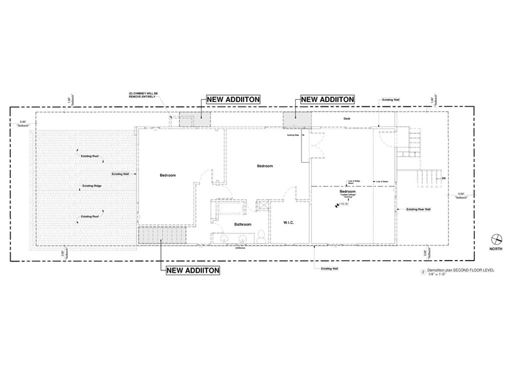
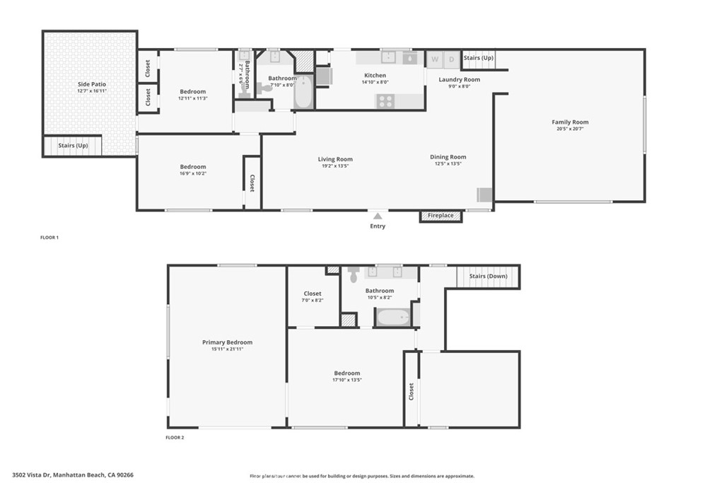
Your Future Starts Here – 3502 Vista Drive, Manhattan Beach What we’re offering isn’t just a home—it’s a head start. Complete with architectural renderings and thoughtfully designed plans by renowned local architect Gary Lane, this is your opportunity to bring a stunning vision to life in the heart of Manhattan Beach’s Sand Section. (see supplement for full plans) Welcome to 3502 Vista Drive, a rare corner-lot gem just blocks from the beach, where future potential meets a premier location. The included renderings showcase what could be, a reimagined coastal retreat designed to turn heads and capture hearts. The groundwork has been laid, the plans are in place. Now, it just needs you. Current specs include 4 bedrooms, 2.5 baths, and approx. 2,600 sq. ft. of flexible living space across two levels—with glimpses of the ocean, generous outdoor areas, and a layout that’s ripe for transformation. Whether you're an investor eyeing your next big return or a future homeowner looking to create your dream beachside escape, this property delivers both promise and possibility. The unbeatable North Manhattan Beach location offers that walk-to-everything lifestyle—coffee runs, surf sessions, brunch with friends, and easy access to Silicon Beach, LAX, and the Westside. And let’s not forget: properties with vision and location like this? They don’t stay possibilities for long. This is your blueprint for something spectacular. Let’s build it.
Property Details | ||
|---|---|---|
| Price | $2,675,000 | |
| Bedrooms | 4 | |
| Full Baths | 2 | |
| Half Baths | 1 | |
| Total Baths | 3 | |
| Lot Size Area | 2695 | |
| Lot Size Area Units | Square Feet | |
| Acres | 0.0619 | |
| Property Type | Residential | |
| Sub type | SingleFamilyResidence | |
| MLS Sub type | Single Family Residence | |
| Stories | 2 | |
| Exterior Features | Sidewalks,Street Lights | |
| Year Built | 1953 | |
| View | Ocean | |
| Lot Description | Corner Lot | |
| Laundry Features | Inside | |
| Pool features | None | |
| Parking Description | Garage | |
| Parking Spaces | 2 | |
| Garage spaces | 2 | |
| Association Fee | 0 | |
Geographic Data | ||
| Directions | Corner of Vista Drive and 35th St | |
| County | Los Angeles | |
| Latitude | 33.900283 | |
| Longitude | -118.415912 | |
| Market Area | 142 - Manhattan Bch Sand | |
Address Information | ||
| Address | 3502 Vista Drive, Manhattan Beach, CA 90266 | |
| Postal Code | 90266 | |
| City | Manhattan Beach | |
| State | CA | |
| Country | United States | |
Listing Information | ||
| Listing Office | eXp Realty of California, Inc | |
| Listing Agent | Edward Kaminsky | |
| Listing Agent Phone | 310-427-2414 | |
| Attribution Contact | 310-427-2414 | |
| Compensation Disclaimer | The offer of compensation is made only to participants of the MLS where the listing is filed. | |
| Special listing conditions | Standard | |
| Ownership | None | |
| Virtual Tour URL | https://www.zillow.com/view-imx/f8a404b7-ee85-4b7e-9d11-ae7fa24c609c?setAttribution=mls&wl=true&initialViewType=pano&utm_source=dashboard | |
School Information | ||
| District | Manhattan Unified | |
MLS Information | ||
| Days on market | 174 | |
| MLS Status | Active | |
| Listing Date | May 1, 2025 | |
| Listing Last Modified | Oct 23, 2025 | |
| Tax ID | 4175014014 | |
| MLS Area | 142 - Manhattan Bch Sand | |
| MLS # | SB25064558 | |
Map View
Contact us about this listing
This information is believed to be accurate, but without any warranty.
